• About
  • Land Promotion
  • Projects
  • Services
  • Company
    • News
    • ESG
Contact us
  • About
  • Land Promotion
  • Projects
  • Services
  • Company
    • News
    • ESG
Contact us
01564 781735 info@lonestarland.co.uk

Follow us on Linkedin

Banbury,
Oxfordshire
Phase 2

Residential Sold

Phase One – Project Overview

Phase One was consented and allowed at appeal. Cherwell District Council had extensive opportunities in three planning committees to approve the application. However, they chose to refuse it and an appeal was lodged through a public enquiry. At appeal, Cherwell chose not to defend their reasons for refusal and as a result, the appeal was allowed. The site has subsequently been sold to Orbit Homes in August 2021.

Phase Two – Sale Completed

Lone Star Land have finalised sale at Balmoral Avenue, Banbury for 49 residential dwellings to Orbit Group. The sale of phase II has been successfully completed only 10 months after Phase I.

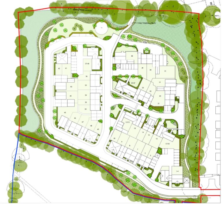
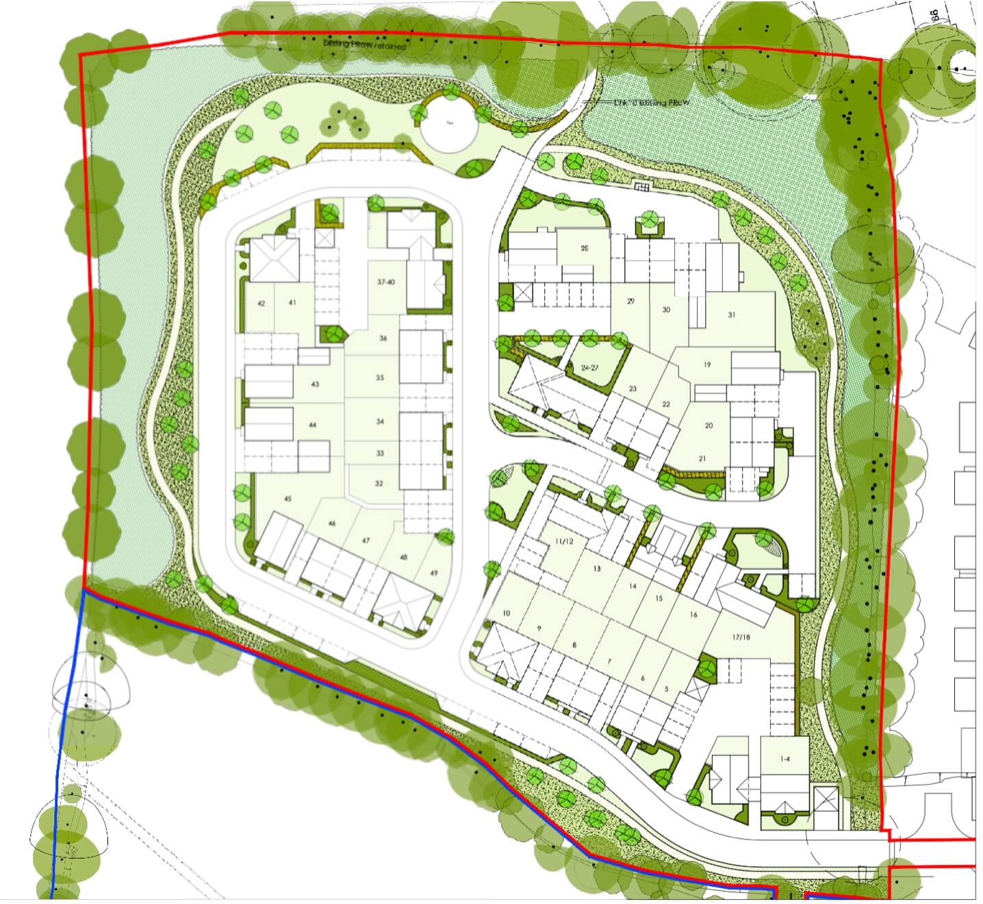
This site measures approximately 1.45 hectares of development land and has a density in the region of 34 units per hectare. The proposed housing will also include a range of tenures with the provision of 30% affordable housing in accordance with current policy. The development proposals will seek to create and provide a high-quality design that will enhance and improve upon the existing mix of housing types within both the immediate locality and the wider area, while providing adequate levels of both private and public open space within the development.

Phase Three will be promoted through the Cherwell Local Plan.

Site information

1.45 ha (3.6 acres)

49 dwellings

30% affordable dwellings

Site images:

Downloads and links:

Planning Application
Residential
Banbury, Oxfordshire

Up to 58 New Dwellings Land North of Broughton Road, Banbury

Residential
Banbury, Oxfordshire Phase 1

49 dwellings, 2.5 ha (6.3 acres)

Residential
Bordesley Hall, Bromsgrove

46 dwellings, 5.1 ha (12.6 acres)

Residential
Leigh Sinton, Worcestershire

45 dwellings, 4.05 ha (10 acres)

Residential
Gaydon, Warwickshire

1.2 ha (3 acres)

Care Home
Berkhamsted, Hertfordshire

103 Extra Care units, 1.2 ha (3 acres)

View all projects
Get in touch

Unlock the value of your land

Contact us

About us

  • Land Promotion
  • Key People
  • Projects

Contact us

t: 01564 781735 e. info@lonestarland.co.uk

Follow us on Linkedin

Find us

50 High Street,
Henley in Arden,
B95 5AN

Legal

  • Privacy Policy
© Lone Star Land 2026 All rights reserved.