Outline planning application has been submitted for up to 121 dwellings and an 80-bed care home at land at Bayswater Farm, Sandhills. The majority of the 7.16 hectare site lies in South Oxfordshire (approx. 7.08 ha), with only 0.08 ha in the administrative area of Oxford. In accordance with government guidance an identical planning application will be submitted to both local planning authorities.

The land at Sandhills is part of a strategic housing allocation in the South Oxfordshire Local Plan 2035. The allocation extends to an area of 110 hectares and states that it will deliver approximately 1,100 new homes within the Local Plan period (up to 2034). A planning application for the main part of the allocation was submitted in December 2021, which has not yet been determined by the Council. The Sandhills parcel is much smaller than the main allocation and is physically severed from it by the existing communities of Barton and Sandhills. For this reason, and as this application demonstrates, the Sandhills parcel is its own distinct housing site that is not subject to the same complex environmental constraints and infrastructure needs as the main parcel.
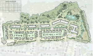
The development proposals will deliver up to 121 Class C3 homes, 50% of which will be affordable housing. There is a substantial need for new housing within South Oxfordshire District and Oxford City. The proposals would make a considerable contribution to the well documented need for Class C2 specialist housing for older persons in South Oxfordshire and Oxford City. The provision of a notional 80 care home, with dementia support facilities, is considered to be a significant social benefit. It also assists in freeing up wider housing stock.
The access points will be from to the south where combined vehicle, pedestrian, and cycle access is taken from Delbush Avenue and Burdell Avenue. In addition, provision is made in the northwestern corner for a future new pedestrian connection in Bayswater Farm Road. This will create access to existing Green Belt land through delivery of new footpaths across the site linking to the existing network of footpaths. This enables the retained Green Belt to the northern edge of the site to provide a recreational resource, with biodiversity enhancements to be delivered through the development of at least 10% net gain.
The substantial area of open space will include an extensive network of routes which connect into the wider pedestrian and cycle network. It will also promote interaction between the new and existing community, as well as health and wellbeing. As part of this it is proposed to enhance the bridleway through widening it across the length of the site.
The application will also have a number of economic benefits, including:
- Creation of direct and indirect construction jobs
- Council tax revenue
- New homes bonus
- Contribution of new residents to local economy
Please find a link to the planning application (click here)